Caractéristiques
| Marque | Robinhood |
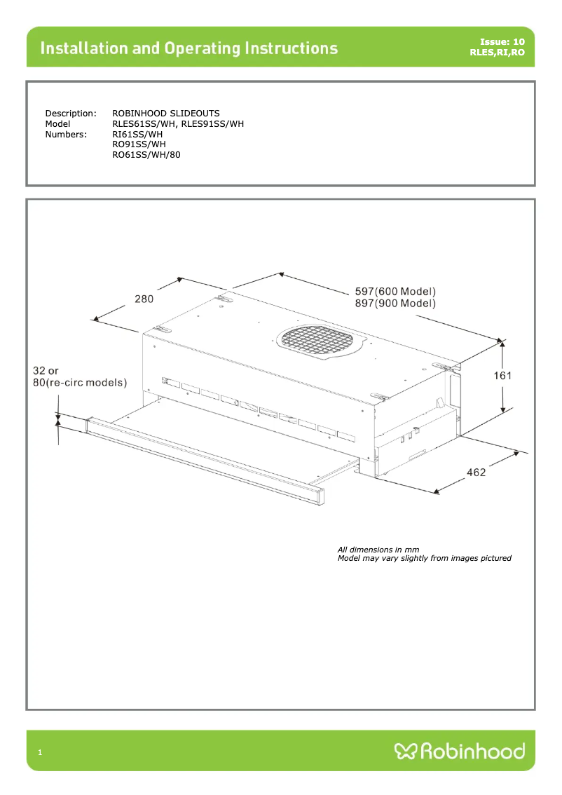
| Modèle | RLES61SS/WH |
| Catégorie | Appareils ménagers |
| Type de produit | Hotte |
| Nombre de pages | 10 Pages |
| Type de fichier |
Page
/ 10