Miniature du produit Fiche technique

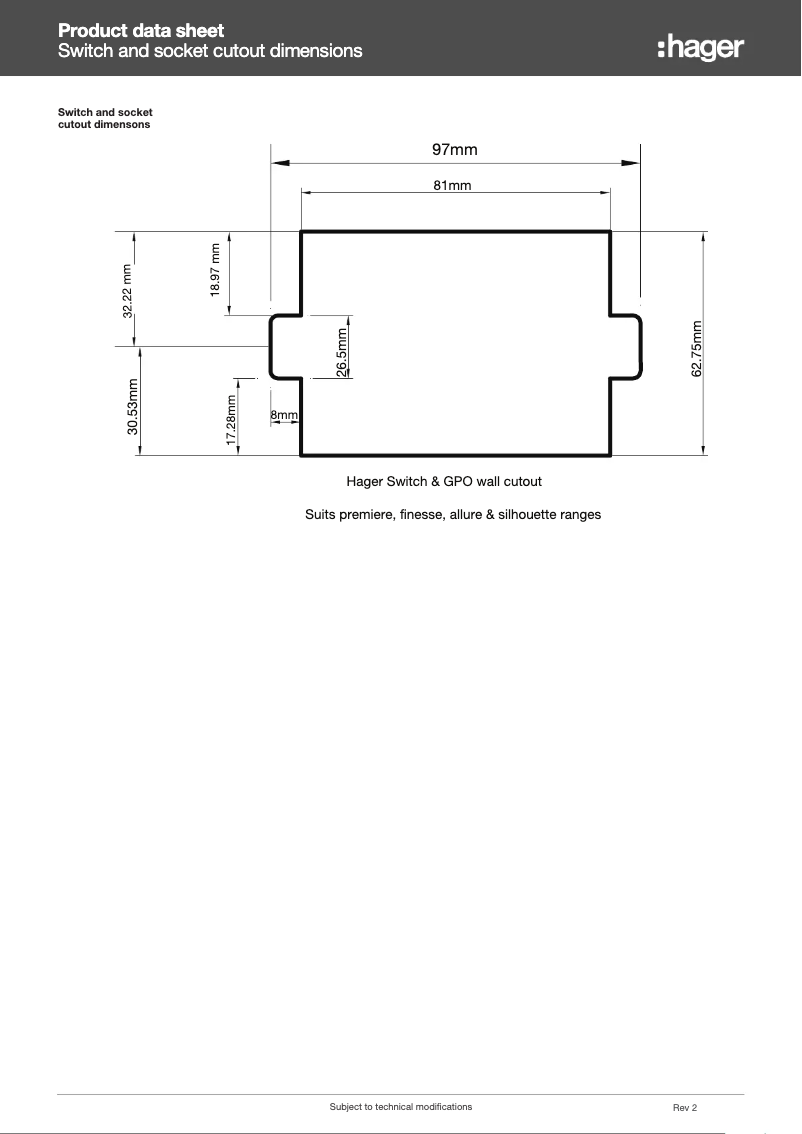
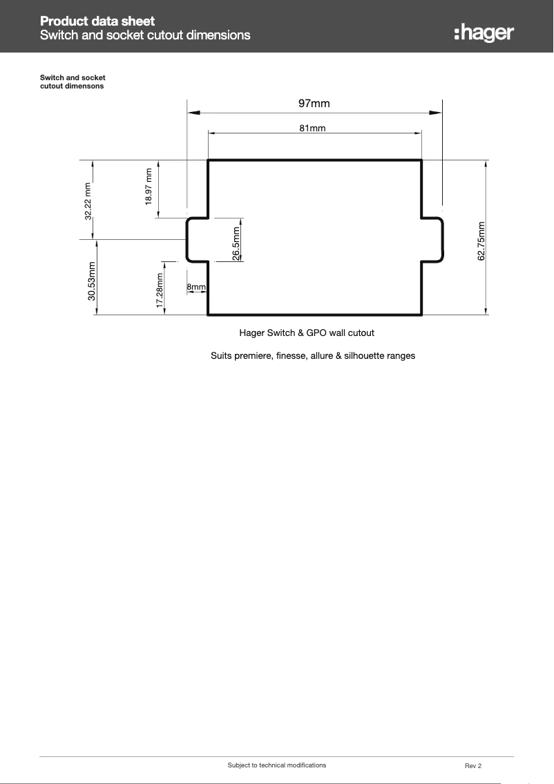
Fiche technique : Hager WBWSV2 prise murale

Hager Electroménager Prise murale

Recherchez parmi les 1 page de la notice : Fiche technique Prise murale Hager WBWSV2 pour trouver les informations qu'il vous manque. Vous ne trouvez pas les réponses à vos questions ? Réservez une vidéo assistance en moins de 2 minutes.

Caractéristiques

Marque Hager
Modèle WBWSV2
Catégorie Electroménager
Type de produit Prise murale
Nombre de pages 1 Page
Type de fichier