Miniature du produit Fiche technique

Fiche technique : Hager WBWSH2 prise murale

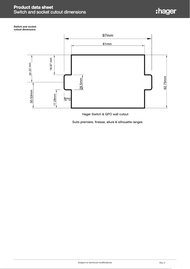
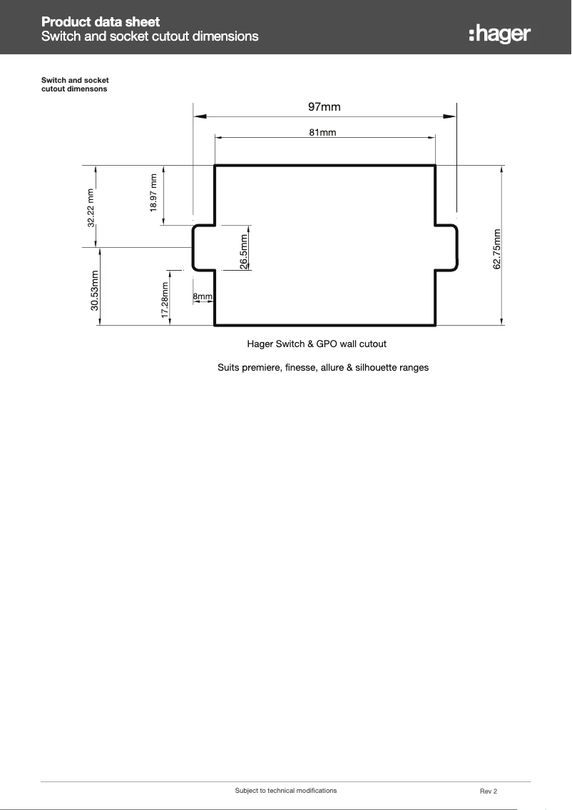
Hager Electroménager Prise murale

Recherchez parmi les 1 page de la notice : Fiche technique Prise murale Hager WBWSH2 pour trouver les informations qu'il vous manque. Vous ne trouvez pas les réponses à vos questions ? Réservez une vidéo assistance en moins de 2 minutes.

Caractéristiques

Marque Hager
Modèle WBWSH2
Catégorie Electroménager
Type de produit Prise murale
Nombre de pages 1 Page
Type de fichier