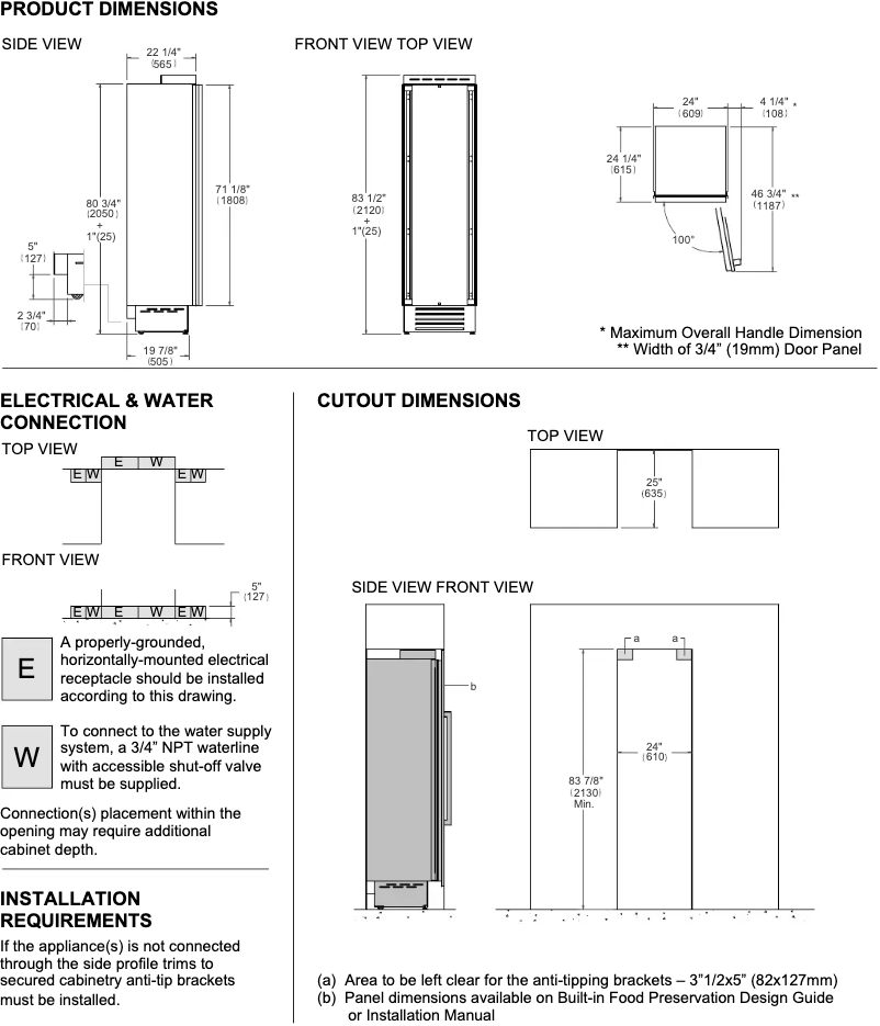
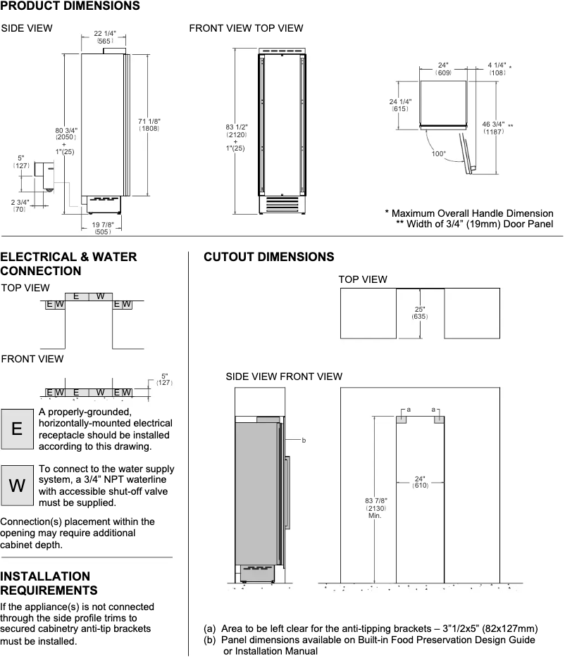
Miniature du produit Instructions / Montage

Instructions / Montage : Bertazzoni REF24FCIPRR réfrigérateur

Bertazzoni Appareils ménagers Réfrigérateur

Recherchez parmi les 1 page de la notice : Instructions / montage Réfrigérateur Bertazzoni REF24FCIPRR pour trouver les informations qu'il vous manque. Vous ne trouvez pas les réponses à vos questions ? Réservez une vidéo assistance en moins de 2 minutes.